技术交流 | 绳锯法在市政管涵施工中的应用
1 项目背景
合肥经济技术开发区天都路(北区界-方兴大道)工程全长约6.9km,为区域内雨水主排通道,本次设计对主排管涵按P=5年进行提标改造,沿天都路方向新建双孔 B4800H2600雨水箱涵。
设计时,桩号(18+90~18+95)段双孔箱涵施工区域内有4.2m宽*2.5m现状综合管廊,管廊内有DN200、300蒸汽管道、DN100冷凝管道、DN300空气压缩管道、DN48除盐管道、强电及弱电管道,受下游现状雨水箱涵标高限制,该综合管廊底高程(25.903m)与箱涵设计顶高程(25.744m)相差仅16厘米,对现状综合管廊的保护处理是本工程的重难点之一。



2 技术方案
常规新建排水管道与其他现状管道(线)交叉,高程发生冲突的处理措施主要有: 双(多)孔法、暗渠法、倒虹管法等,本工程同现状综合管廊相交叉主要存在以下几个施工难点:
(1)新建箱涵为双孔B4800H2600,过流能力约54m³/s,若采用多孔法需采用6根2600雨水管替换,无法采用多孔法顶管施工。
(2)现场施工时两侧采用钢板桩支护,开挖断面15m,挖深约8米,无法将现状综合管廊整体悬吊保护实施。
根据现场情况,设计考虑两个方案,具体介绍如下:
方案一、管线迁改
建议将管线全部迁改,新建管廊采用成品d2200砼管,在选择合适位置后铺设新建管廊,新建管线廊断面如下:

待与管线产权单位协商确定停运时间后,进行穿线、管线对接等工作,完成线路迁改。
迁改完成后对旧管廊进行拆除,按照图纸完成道路工程施工。
上述方案需得到管线产权单位的同意并在一定时间段停运迁改,迁改工程量较大、工期长,费用高,本次不予采用。
方案二、管线悬吊保护
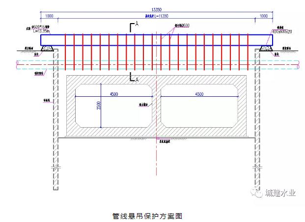
本工程难点在于现状综合管廊难以整体悬吊保护,需先将已建管廊顶板拆除,拆除过程中应防止破碎顶板坠落而造成廊内管线的破坏,顶板拆除后,可采用钢缆绳或角钢等连接措施将廊内管线悬吊于顶部钢梁之下,雨水箱涵之上。

为避免拆除过程中的破碎顶板坠落,本次采用绳锯法切割现状管廊,首先在管廊上划分分块切割线,用钻孔机在顶板上钻好通孔,穿上链条,开通水管,调节水流大小,通过控制器将链条收紧,最后采用吊车将顶板分块吊运。


通过绳锯法拆除已建管廊,对现状管线采用悬吊保护后完成雨水箱涵施工。待雨水箱涵建成并回填完毕后根据管线产权单位的意见、道路荷载及相关规范要求,对管廊进行原位恢复重建,恢复重建的管廊顶板需将悬吊的管线放置于廊内后方可施工。
3 结语
绳锯法多用于桥梁及房建工程,随着近几年综合管廊的快速发展,市政道路改造过程中管线交叉情况更为复杂,本工程目前已顺利竣工,在实施过程中,绳锯法的应用为后期大型雨水箱涵同管廊等管线交叉提供了一种新的解决思路。
以上是小编收集整理的技术交流 | 绳锯法在市政管涵施工中的应用部分内容来自网络,如有侵权请联系删除:153045535@qq.com;
本文地址:










