综合管廊大口径输配水干管专项设计要点
摘要:讨论了综合管廊大口径输配水干管专项设计要点,分析了管廊内大口径输配水管管材选择、管道接口形式、管道防腐、附属设施设计,结合工程案例介绍了关键节点设计以及施工时应注意的问题。得出如下结论:管廊内DN800以上干管多采用钢管,连接方式采用焊接;根据供水管道运行要求,需要设置必要的检修阀、排水阀、排气设备、压力变送器等;关键节点主要包括引出口、端部井以及交叉口管线设计;建议管道远程监控与管廊监控系统合用,监控信号送至自来水公司;专项设计需保证近远期设计容量、相应的安装维护空间以及控制要求。

管廊内给水管线(含管线附属设施)通常由供水管道建设单位委托专项设计,与综合管廊设计同步进行,全过程设计衔接、协调。着眼于综合管廊内大口径输配水干管专项设计,归纳设计要点。
01 给水管专项设计
1.1 管道材质及连接方式
《城市综合管廊工程技术规范》(GB 50838—2015)第6.2.2条对给水、再生水管道管材及连接方式提出要求:“给水、再生水管道可选用钢管、球墨铸铁管、塑料管等。接口宜采用刚性连接,钢管可采用沟槽连接。”给水管为压力管道,根据管廊内的情况,供水管道均需架空(设支墩)明敷,没有埋地敷设时由土壤摩擦力来抵消管道运行时的振动及轴向变形,因此采用刚性连接的钢管、塑料管,能一定程度避免管道由于收缩拉力或不均匀沉降造成管道拉脱爆管。同时管线支墩不宜过大占用管廊空间,且应能适应管廊带来的不均匀沉降,大口径(DN800及以上,下同)管道采用钢管经济性也相对较高,目前管廊内大口径输配水干管多采用钢管。
钢管的连接方式有如下几种:沟槽(卡箍)式连接、法兰连接、焊接等。沟槽式连接一般仅用于管径 DN400以内,市政钢管多采用焊接或法兰连接。钢管一般6m一节,干管敷设距离多则几公里,尤其对于大口径管道若采用法兰焊接成本较高,故管廊内给水管道标准段多采用焊接形式连接。而伸缩接头、阀门等节点处采用法兰连接。由于焊接时会有火花产生,管廊内空间较为封闭且附近可能有电缆等易燃物品,因此同舱敷设时,给水管道初次入廊时间应早于电力电缆。在局部维修时,应对已入廊的电缆采取防护措施,防止维修时的火花附着于电缆之上,造成火灾。
1.2 管道附属设施
根据供水管道运行要求,供水管道需要设置必要的检修阀、泄水阀、排气设备、压力变送器等。
结合管廊运行的实际情况,除管廊外设置阀门外,廊内主干管及各支线或引出管需设置检修阀。一般,埋地输水干管每隔1~3km设置一处手动检修阀,过多地设置检修阀一方面增加了水头损失,同时也可能带来因阀门自身原因导致管线漏水、长时间常开状态检修时难以关闭等系列问题。长距离输水管线设计时检修阀组间的距离可达5km。对于管廊内大口径输配水管,因其一旦爆管,廊内积水无法快速排出,可能对同舱的其他管线造成安全影响,建议干管上约500~1000m设置一处立式电动检修阀。管廊内部引出管立管上设置检修阀,则是考虑管廊内部发现问题时能及时从内部切断;为排除管道中的积泥和在管道出现事故时放空,同时考虑管道试压、冲洗,在配水管道的适当位置(低点临河、临水塘处)设排泥三通及泄水阀。泄水阀设置应靠近集水坑附近,放空管严禁伸入集水坑内。一般,市政配水管网的消火栓及用户点可在一定程度上起到辅助排气作用,加之管网成环后有一定的缓冲作用,排气阀的设置可酌情减少。而输水管道管线下坡前高处以及较长平直管段设置复合排气阀,不超过1 km设1处。建议廊内大口径输配水管除管道凸起点外,不再在中间设置排气阀。排气阀采用自动复式排气阀,既可自动排气,又可在管道需要检修放空时进气。压力变送器是用以测定给水管道压力的传感器,以设在大中型的干管上为主。测压点的选定既要真实反映水压情况,又要均匀合理布局,并能代表附近地区的水压情况。此外,需考虑供水管道上大口径阀门、电磁流量计等附属设施的安装需求。如苏州某管廊内DN1000配水干管检修阀门(主要作用是隔断,将故障点两端的阀门关闭后即可对管道进行维护),其整体高度不小于2.2m,故管道上方应留有不小于1.0m的阀门附件放置空间。总体设计时上部管线支架需考虑局部避让。而电磁流量计通常略宽于管道本身,因此在设计时,流量仪设置位置结合计量、爆管预警等功能需求,一方面尽量考虑与节点结合设计(断面宽度大于标准断面),另一方面在不影响消防通道的前提下,局部占用检修通道空间。
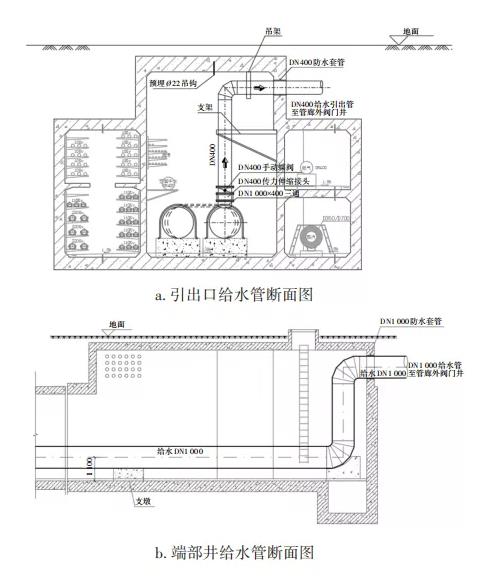
1.3 节点设计
以苏州某管廊工程DN1000给水管专项设计为例,简单介绍入廊给水管道的关键节点设计,包括引出口、端部井及交叉口(见图1)。引出口一般优先考虑采用局部加高侧出的方式,便于与市政埋地管道相接,并在引出竖管上从下至上依次设置阀门、伸缩接头,该设置顺序主要考虑伸缩接头漏水时可及时切断,立管通过支架、吊架固定。端部井设置于管廊起终端,该节点给水管道沿端部井侧壁爬升到适当高度侧出后与廊外管道相接,廊外设置阀门。交叉口则根据其主体结构有几种不同的形式,图1(c)所示为“全包型”交叉口形式,主廊DN1000给水管道从底板下穿与支廊DN300给水支管连接,下部2m净空空间可满足安装检修所需,支管起端设置隔断阀门。

1.4 管道相容
供水管道入廊敷设后避免了土壤腐蚀,管道安全性进一步得以提高。因此,在目前建设运行的综合管廊中,大部分纳入了供水管道。供水管道可以与电力电缆、通信电缆、热力管道同舱敷设。理论上供水管道也可与燃气管道同舱敷设,但由于燃气舱需按防爆设计,供水管上设置的电动控制阀需采用防爆型,会增加造价及维护费用。
1.5 管道防腐
对外防腐涂料的要求:有良好和稳定的电绝缘性能、与金属表面有较强的黏着力、耐腐蚀性能好、抗剥离强度高、施工方便、不造成环境污染等。一般可供选择的涂料有:环氧煤焦沥青、环氧玻璃鳞片、环氧粉末涂料、煤焦沥青瓷漆、石油沥青及聚乙烯胶粘带等。环氧煤焦沥青具有较好的防腐电绝缘性能,耐细菌腐蚀,又具有良好的耐阴极保护电位的性能,国内外有许多成功应用的实践经验。熔结环氧粉末(环氧粉末喷涂)具有优良的抗渗透性、耐水性、耐腐蚀和抗冲击性,价格与常用的环氧煤焦沥青防腐涂料相比,相对略高。室内管道及配件外防腐亦常采用有机硅丙涂料,普通级为二道底漆二道面漆,干膜总厚度不小于150μm。管廊内管道所处地下室环境无需考虑抗紫外线照射,环氧煤焦沥青、环氧粉末、3PE都可采用,需综合考虑经济性及维护周期要求,酌情选择。
内防腐:D≥500 mm的管道采用水泥砂浆衬里,厚度应符合《给水排水管道工程施工及验收规范》(GB 50268—2008)的规定。D<500mm管道采用船用无毒饮水舱涂料,二道底漆二道面漆,涂层干膜总厚度不少于150μm,总用量不少于0.4kg/m2。
1.6 事故爆管问题
管廊内沿线排水坑泵排能力一般不考虑管道冲洗等的废水排放及爆管产生的事故废水排放。对于供水管道事故爆管排水,假设管廊内设DN800供水管道,排水量按一根发生爆管计算,DN800供水管道每1 000m设一处阀门,采用电动阀门,管理人员可在控制中心进行操作,因此爆管至关闭阀门,一般不超过3min,一次事故排水量按管道3 min的排水量(管道流速取1m/s,合计约90.4m3)加上1000m管道的水量计算。假设给水管道舱室宽度按3.15m计算,淹没水深达0.19m,按单个防火分区(200m)设二处集水坑复核,每处集水坑内设2台排水泵,单泵排水量为25m3/h,平时正常排水时1用1备,事故时2台同时工作,共20台水泵约1.2h排空爆管水,因此从自来水公司及时开展抢修工作角度考虑,需由检修人员外部协助排水,缩短排水时间。
1.7 其他
给水管道出入管廊部位(引出口,端部井)预埋套管,考虑水管热胀冷缩影响。廊内干管是否设置补偿接头结合计算结果确定,一般对于大口径钢管,其本身延展性即可满足要求。穿防火墙处设置钢制套管,套管尺寸大于给水管道两级,两侧超出防火墙20mm,穿防火墙管道与套管缝隙之间应用阻燃密实材料和防水油膏填实。支墩间距根据计算确定(一般6~10m),变形缝两侧各设一个,采用钢抱箍连接。支墩在管廊底板预留插筋与结构底板牢固连接,且支墩配筋。倒虹段转折处采用混凝土包裹式钢筋混凝土支墩。建议管道远程监控与管廊监控系统合用,监控信号送至自来水公司。
此外,关于给水管道入廊后,室外消火栓如何设置的问题,规范规定,室外消火栓的间距不应大于120m,若每隔不超过120m从管廊中引支管做消火栓大大增加了节点数量和工程投资。同时,一般不建议在大口径输配水干管直接引出消防管。因此,针对于此,通常可在道路敷设一根专用直埋消防管。当道路宽度大于60m时,要求在道路两边设置消火栓,此时可酌情在管廊引出口出廊配水管上合理设置消火栓,在道路另一侧敷设消防专用管。
02 施工要求
2.1 施工顺序
管廊平直段需考虑管道在管廊内的平行运输条件,同时鉴于安全问题,市政舱室给水管必须先于电力及通信电缆施工,避免钢管焊接火花等碰触线缆带来安全隐患。
2.2 管道安装
施工时需考虑管道在管廊内的平行运输条件,预留足够的吊装及固定空间。同时,管道焊接一般先于廊内通风设施安装,焊接作业时不具备全面通风的条件,因此,需尽量靠近可自然通风处(投料口、引出口、通风口均可)进行焊接作业,同时设置可移动式小型排烟除尘机,保障施工人员安全健康的施工环境。此外,管廊顶板宜预埋吊钩,方便大口径管道落管就位时的安装吊运。
2.3 管道冲洗
按照GB 50268—2008要求,给水管道安装敷设后,应及时开展压力试验。压力试验合格后,投入使用前应进行管道冲洗与消毒。管廊内排水泵泵排能力并未考虑给水管道冲洗排水,针对此问题,一种方法是可于引出管上增设T口,排至附近受纳河体。以苏州某管廊DN1000给水管专项设计为例,全长约8.3km的管廊敷设范围内,有10条小河浜与管廊所在道路垂直交叉,另与管廊平行方向也有河道,可供沿线引出口排放冲洗水。特别是针对管廊及配套管线分段实施时,可满足管道分段冲洗的要求。另一种方法是可考虑投放临时大泵协助已有排水坑小泵共同排水,大泵出口可利用通风口或者投料口等口部临时引出管廊。
03 结论
① 管廊内DN800以上口径配水干管多采用钢管,连接方式采用焊接连接。管廊内管道所处环境不接触土壤,同时无需考虑抗紫外线照射,因此环氧煤焦沥青、环氧粉末、3PE都可用于外防腐,可综合考虑经济性及维护周期要求,酌情选择。
② 供水管道需设置必要的检修阀、排水阀、排气设备、压力变送器等。管道支撑采用混凝土支墩,水平段间距计算确定(一般6~10m),变形缝两侧各设一个,采用钢抱箍连接。管道远程监控建议与管廊监控系统合用,监控信号送至自来水公司。
③ 管道附属设施可能与其他管线存在交互关系。关键节点设计主要包括引出口、端部井及交叉口管线设计。给水管道出入管廊部位以及穿越防火墙处需做特殊考虑。
④ 施工时需考虑管道在管廊内的平行运输条件,同时预留足够的吊装及固定空间。管廊内排水泵泵排能力并未考虑给水管道冲洗排水,针对冲洗水排放问题,一种方法是可于引出管上增设T口,排至附近受纳河体;另一种方法是可考虑投放临时大泵协助已有排水坑小泵共同排水,大泵出口可利用通风口或者投料口等口部临时引出管廊。
以上是小编收集整理的综合管廊大口径输配水干管专项设计要点部分内容来自网络,如有侵权请联系删除:153045535@qq.com;
本文地址:








